BEGC Bureau d'Études Grandes Cuisines Dessinateur - Coordinateur BIM

Mon travail de dessinateur - coordinateur BIM chez BEGC est ma première expérience professionnelle sérieuse.

Recruté en alternance dans un premier temps pour ma licence BIM au lycée Aimé Césaire de Clisson, j'ai ensuite continué chez eux au vu des projets complexes et intéressants qu'ils pouvaient me proposer. Mais aussi car ils me permettaient d'améliorer mes compétences dans les domaines du DAO / CAO, de la coordination BIM et du développement Revit.

Conception d'une cuisine de prodution pour un lycée publique

Premier projet d'envergure Conception d'une cuisine de prodution pour un lycée publique

Ce projet fait partie d'un ensemble de construction pour une région qui voit sa démographie fortement augmenter ces derniers temps.

Ce projet met en avant une volonté de s'inscrire dans une démarche environnementale innovante et une approche bas carbone.

Et mon travail sur ce projet?

Et mon travail sur ce projet?

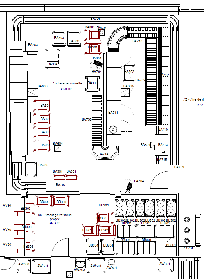
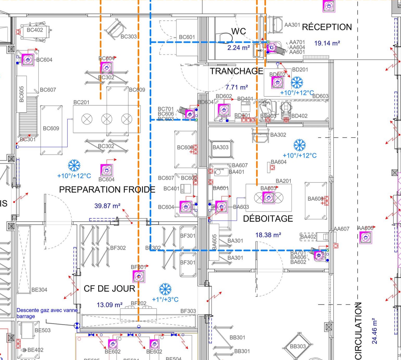
En tant que dessinateur, ma première tâche évidente a été de réaliser les pièces graphiques pour ma société BEGC.

Plans d'implantation en premiers, puis ceux des réservations, quelques axonométries et plans de zoning. Le tout sur mon logiciel de prédilection : Revit.

En parallèle, j'ai assisté le chef de projet sur l'opération pour l'organisation des locaux, le choix et le dimensionnement des équipemments de cuisine. Mais aussi les échanges avec les autres corps d'état sur le projet.

Pour ce projet, une convention BIM de niveau 2 a été mise en place. Par conséquent nos différents composants figurant dans notre modèle devaient respecter certaines règles bien définies : organisation des informations et de leur export, modifications encadrées et gestion des conflits avec les modèles liés des autres corps d'état.

Quelques visuels supplémentaires

Conception d'une cuisine centrale qui approvisionnera les 10 cantines de sa commune

Une autre réalisation imposante Conception d'une cuisine centrale qui approvisionnera les 10 cantines de sa commune

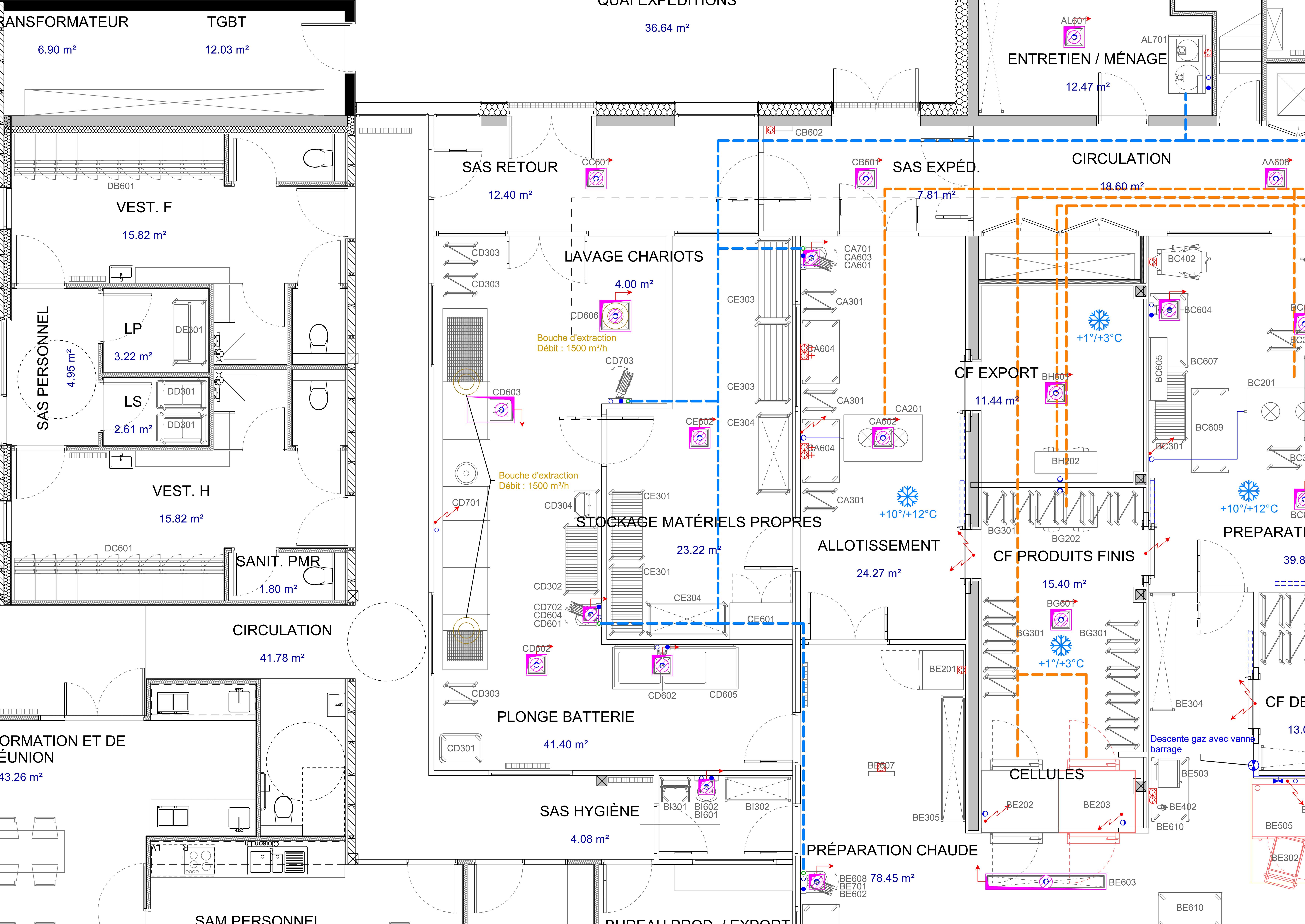
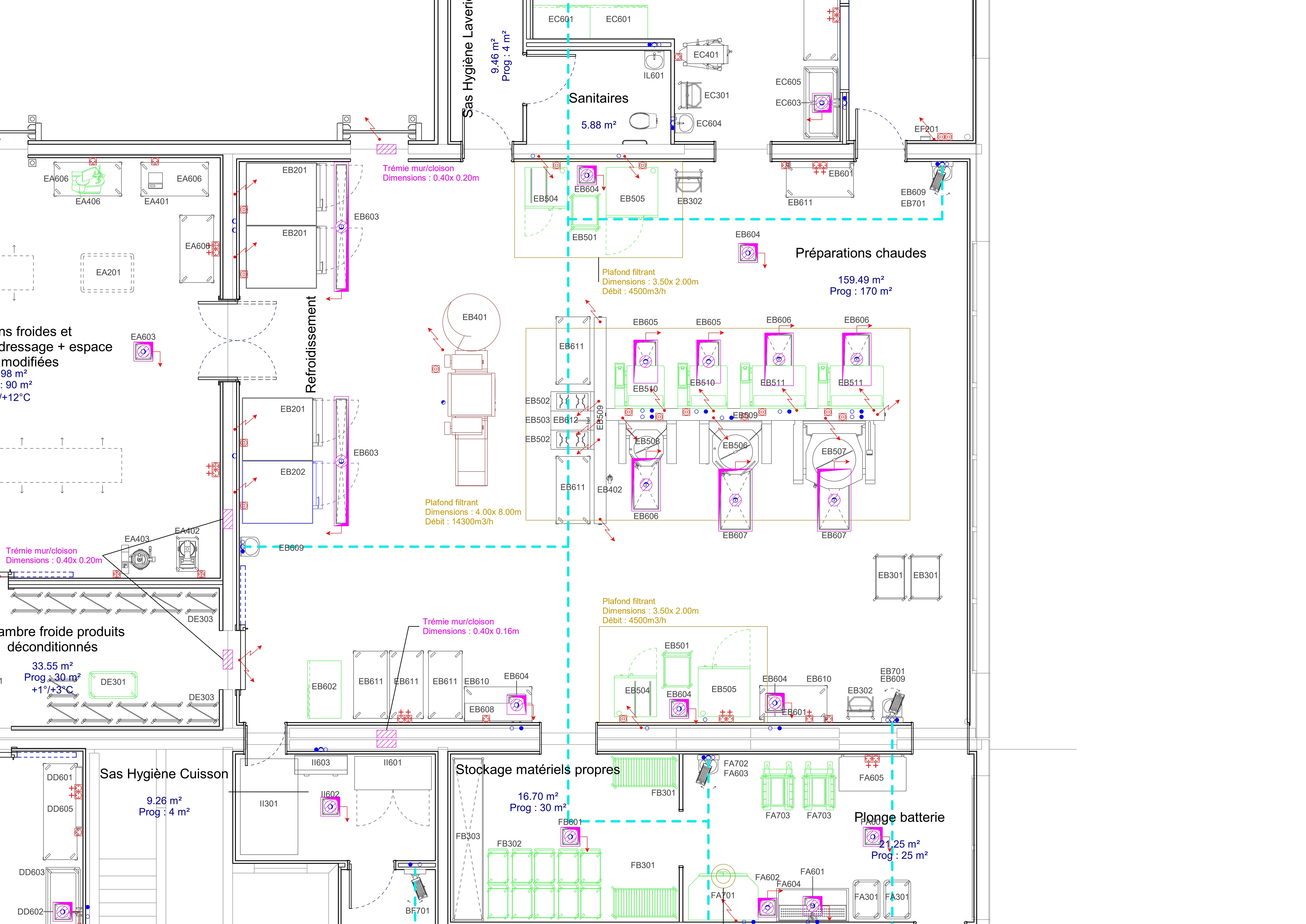
Projet de cuisine centrale qui approvisionera les cantines environnantes, pour un total de plus de 100.000 repas à l'année.

Cette cuisine comprendra un espace de production bien entendu, mais aussi un espace d'allotissement pour exporter vers les différents lieux de restauration de la commune. Ainsi qu'un espace de retour pour le lavage des multiples contenants réutilisables qui seront utilisés.

Ici aussi j'ai eu à m'occuper de la réalisation de l'ensemble des pièces graphiques de nos études. Plans d'implantation, des réservations, des flux, ...

Le point d'intérêt principal de ce projet a été la réflexion portée sur la zone d'export / import pour les contenants des plats préparés. Une organisation suplémentaire par rapport à une cuisine de production sur-place était à prévoir, ce qui a ajouté du piment à ce projet.

Des visuels plus parlants

Centre Hospitalier Régional

Projet mélangeant production sur place et cuisine centrale Centre Hospitalier Régional

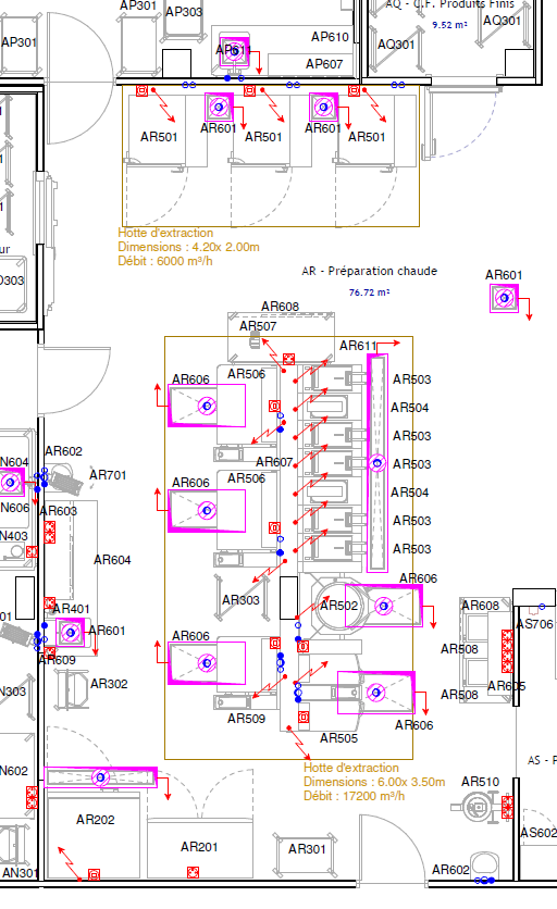
Cuisine professionnelle faisant de la production sur place mais aussi de la production pour exporter vers d'autres sites.

Ce projet a également pour souhait de s'inscrire dans une logique de développement durable. Pour cela il a adopté un Agenda 2030, celui-ci dresse 17 objectifs qui visent un nouveau modèle de développement d'ici 2030 au niveau européen.

D'autres visuels